DynamicRoll Low Headroom

Alta sicurezza anche quando lo spazio è ridotto

Ottimizza lo spazio negli ambienti a soffitto basso, garantendo passaggi rapidi e protezione da polvere, correnti d’aria e agenti esterni.

La DynamicRoll® Low Headroom è perfetta per industrie, grandi distribuzioni, magazzini di stoccaggio, laboratori produttivi, chimica, automotive, autolavaggi, alimentare e parcheggi/garage.

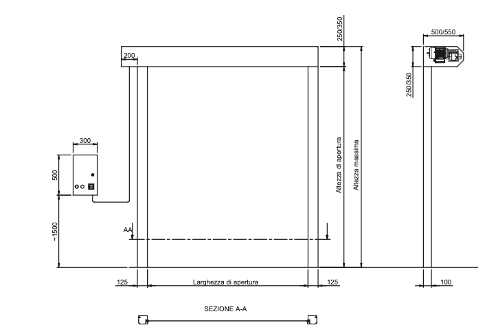
Rispetto al modello base, il cassonetto è ridotto grazie a un doppio albero di avvolgimento, rendendo la porta ideale per ambienti con ingombri limitati sopra l’apertura.

Come tutte le porte DynamicRoll®, il telo in PVC è privo di elementi metallici e, in caso di urti, il sistema di scorrimento autoriparante permette al telo di fuoriuscire e rientrare automaticamente senza intervento dell’operatore. La porta assicura flusso rapido di traffico e sicurezza ottimale.

Applicazione Tecnica

La motorizzazione della Low Headroom è gestita da inverter con encoder assoluto, garantendo precisione e affidabilità anche su cicli intensivi. La struttura compatta con profili avvolgenti e guide senza elementi rigidi assicura alto isolamento.

Il pannello di controllo plug & play con auto-diagnostica facilita l’installazione e la manutenzione. La porta è silenziosa grazie alle guide in polietilene autolubrificante ad alta densità. Altezza e larghezza massime fino a 5.500 mm, apertura fino a 3,6 m/s, chiusura fino a 1,2 m/s. Conforme alla normativa EN 13241-1.

Scheda Tecnica
Caratteristiche e Punti di forza
Alta velocità di apertura (fino a 3,6 m/s)
Cassonetto compatto per installazioni con spazio limitato sopraporta
Struttura compatta e alto isolamento, guide senza elementi rigidi né spazzola
Autoriparante: il telo si reinserisce automaticamente senza fermare la produzione
Sicura per gli utenti: telo flessibile senza elementi rigidi, protezione elettronica con fotocellule
Tecnologia e precisione: motorizzazione con inverter e encoder assoluto
Silenziosa: guide in polietilene autolubrificante ad alta densità
Plug & play: facile e rapida da installare
Manutenzione ridotta e funzionamento senza olio
Design elegante e funzionale
Garantita oltre 1.000.000 di cicli
Tecnologia brevettata

Richiedi un preventivo

Compila il modulo per ricevere una consulenza dedicata e un’offerta su misura per il tuo settore e per le dimensioni del varco.

Hai bisogno di aiuto?

Il nostro team tecnico è a tua disposizione per consigliarti la porta rapida più adatta al tuo ambiente di lavoro.

Servizio Clienti

055 0460495